Войти
Поиск недвижимости Добавить объявление Новостройки Застройщики Агентства недвижимости Риэлторы Статьи Новости Ипотечный калькулятор
Продажа Аренда Реклама на kn.kz Правила и тарифы Правовая информация Способы оплаты Импорт объявлений из xml О компании Обратная связь Полная версия сайта

ЖК Tumar Residence

Астана, р-н Есиль
Цена
Застройщик: от 530 000 ₸  / м²
Другие продавцы: от 583 322 ₸  / м²
Начало строительства
4 квартал 2023
Статус
Строится
Идут продажи от застройщика
Застройщик
Tumar Group
Детский сад "Қарлығаш"
пр. Мангилик Ел, 82
Частный детский сад "Abadan"
ул. Бокейхана, 50
ТРЦ "Mega Silk Way"
пр. Кабанбай батыра, 62
Назарбаев Университет
пр. Кабанбай батыра, 53
Павильон-музей "Нұр Әлем"
пр. Мангилик Ел, В1
Продажа от застройщика
Актуально на 4 февраля 2026

Условия продажи
Рассрочка
Характеристика комплекса
Класс ЖК: комфорт
Умный дом: нет
Высота потолков: 3 м
Технология строительства: монолитно-каркасная
Этажность: 3 – 17
Паркинг: подземный
Варианты отделки: предчистовая
Лифт: пассажирский и грузовой
Окна: обычные
Отопление: центральное
Динамика цен за м² от застройщика
Район
Отзывы
0 отзывов о ЖК Tumar Residence
0.0
Написать отзыв
Загрузка...
Примечание
Целью публикации информации о ЖК является определение спроса на данный продукт. Однако, договоры о долевом участии в жилищном строительстве будут заключены только после того, как будет достигнуто соглашение о предоставлении гарантии от Фонда гарантирования или получено разрешение на привлечение денежных средств от местных исполнительных органов.
Описание
Tumar Residence представляет собой многофункциональный жилой комплекс с панорамными видами на левом берегу столицы. Жилой комплекс расположен на первой линии проспекта Мангилик Ел, рядом с улицей Хусейн бен Талал.

Единая архитектурная композиция состоит из 5 жилых блоков, между которыми расположились 3 таунхауса и галерея коммерции. В строительстве использована монолитная система. В качестве отделочного материала использованы алюминиевые композитные панели. Сквозные подъезды оборудованы колясочными, мягкой мебелью, дизайнерскими люстрами и встроенными светильниками.

Закрытый внутренний двор на втором уровне комплекса - настоящая изюминка проекта. Территория двора ЖК Tumar Residence является закрытой. Имеется круглосуточное видеонаблюдение.

  • Детские площадки с песочницей, качели и беседки, 
  • Площадка для футбола, баскетбола, 
  • Открытый workout-комплекс
  • Дизайнерские беседки из натуральных материалов
  • Авторский ландшафтный дизайн
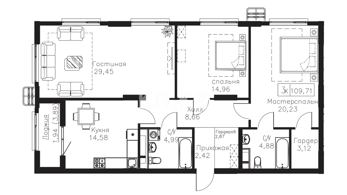
Квартиры от других продавцов
kn.kz
>
ЖК и новостройки в Казахстане
>
ЖК и новостройки в Астане
Главная
Поиск
Добавить
0 Избранное
Кабинет