ул. Калдаякова, 14, Астана, р-н Сарайшык                    
                
                        2-комн.
                        
                            квартира
                        
                    
                                                    
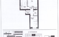
                        71.2 м²
                        площадь
                    
                                                    
                        13.2 м²
                        кухня
                    
                                                    
                                                3                             из 10                        
                        этаж
                    
                            
        Описание
    
    
                Продается просторная 2-комнатная квартира-распашонка в самом лучшем для жизни районе Астаны.
Квартиру можно переделать в евро 3-комнатную.
Дом бизнес класса от надежного застройщика Sensata.
Потолки 3м. Удачно расположена на 1-й линии Каладаякова.
Рядом находится школа-лицей 73, Национальный музей, Президентский парк.
Ключи будут выдавать 27 сентября, уже можно начинать ремонт.
В доме находится коворкинг зона, детская игровая внутри ЖК, work out зал, футбольное поле, большие игровые площадки.
            Квартиру можно переделать в евро 3-комнатную.
Дом бизнес класса от надежного застройщика Sensata.
Потолки 3м. Удачно расположена на 1-й линии Каладаякова.
Рядом находится школа-лицей 73, Национальный музей, Президентский парк.
Ключи будут выдавать 27 сентября, уже можно начинать ремонт.
В доме находится коворкинг зона, детская игровая внутри ЖК, work out зал, футбольное поле, большие игровые площадки.
Читать полностью
                
            
            Свернуть
                
            
        Автор объявления
            Собственник
            Пожаловаться на объявление
            
        
        09.08.2025
        id: 3539551
    
Похожие объявления
             
                            
                                             
                            
                                             
                            
                                             
                            
                                             
                            
                                             
                                
                             
                                
                             
                                
                             
                                
                             
                                
                             
                 
                 
                 
                 
                 
                 
                 
                 
                 
                 
                 
                 
                 
                 
                 
                 
                 
                 
                 
                 
             
             
             
            