Войти
Поиск недвижимости Добавить объявление Новостройки Застройщики Агентства недвижимости Риэлторы Статьи Новости Ипотечный калькулятор
Продажа Аренда Реклама на kn.kz Правила и тарифы Правовая информация Способы оплаты Импорт объявлений из xml О компании Обратная связь Полная версия сайта

ЖК Crystal

Усть-Каменогорск
Цена
Застройщик: от 375 000 ₸  / м²
Статус
Строится
Идут продажи от застройщика
Застройщик
ATQ Corporate
Лицей №44
пр. Сатпаева, 8/3
Лицей "НурОрда"
ул. Утепова, 22/1
Торговый дом "Айгуль"
пр. Сатпаева, 16/1
Торговый комплекс "Mosso"
ул. Утепова, 29а
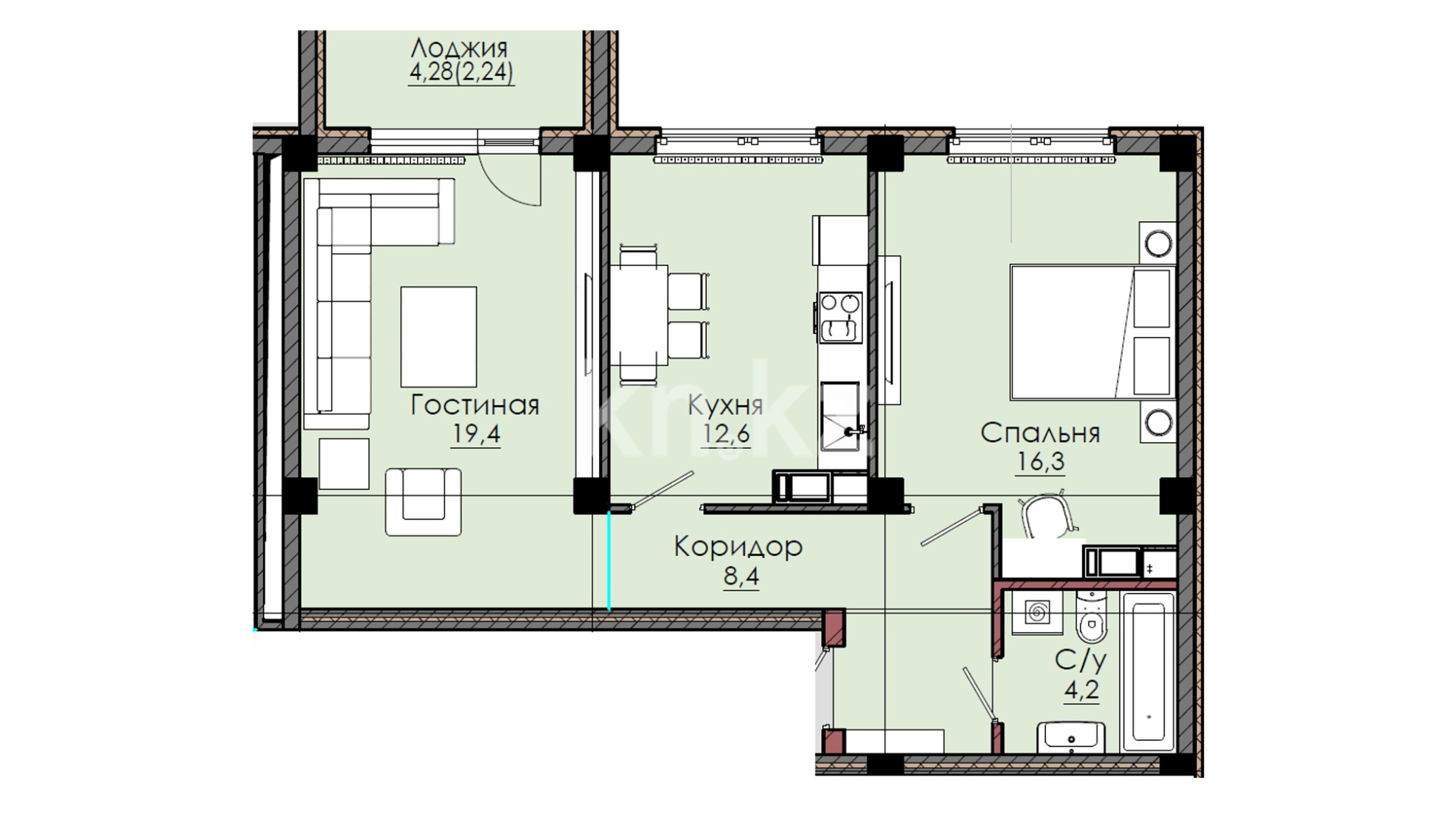
Квартиры и помещения ЖК Crystal от застройщика
Цены и наличие актуальны от 24 октября 2025

Характеристика комплекса
Класс ЖК
комфорт
Умный дом
нет
Высота потолков
2.8 м
Технология строительства
монолитно-каркасная
Этажность
12 – 14
Паркинг
подземный
Варианты отделки
предчистовая
Лифт
пассажирский и грузовой
Окна
панорамные
Отопление
центральное
Надежность объекта
Гарантия Единого оператора жилищного строительства ФЩ "КЖК"
Отзывы
0 отзывов о ЖК Crystal
0.0
Написать отзыв
Загрузка...
Описание
Жилой комплекс Crystal расположен в развитом, экологически чистом районе города, на улице Жастар вблизи ее пересечения с улицей Утепова. 

Crystal – жилой комплекс, состоящий из двух зданий переменной этажности (12-14 этажей). Спроектирован по уникальному архитектурному проекту в современном стиле. Отделка фасада выполняется фиброцементными панелями в серых, бежевых, коричневых тонах. В комплексе имеется коммерческая недвижимость – под нее отдан весь первый этаж ЖК.

Благоустройство дворовой территории:

  • детская игровая эко-площадка,
  • площадка для игры в футбол,
  • спортивная площадка с силовыми тренажерами,
  • зона для отдыха,
  • безопасные пешеходные и велодорожки,
  • удобные автомобильные проезды,
  • ландшафтный дизайн.

Предусмотрен подземный паркинг для автомобилей владельцев недвижимости. 
kn.kz
>
ЖК и новостройки в Казахстане
>
ЖК и новостройки в Усть-Каменогорске
Главная
Поиск
Добавить
0 Избранное
Кабинет