Войти
Поиск недвижимости Добавить объявление Новостройки Застройщики Агентства недвижимости Риэлторы Статьи Новости Ипотечный калькулятор
Продажа Аренда Реклама на kn.kz Правила и тарифы Правовая информация Способы оплаты Импорт объявлений из xml О компании Обратная связь Полная версия сайта

ЖК в р-не Старого Аэропорта

Уральск
Адрес
ул. Жумагалиева, 55
2023 г.
Цена
Застройщик: от 300 000 ₸  / м²
Статус
Построен
Идут продажи от застройщика
Застройщик
РНК-­Кз
Школа №37
ул. Самал, 72
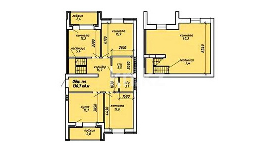
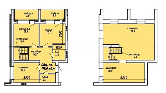
Квартиры и помещения ЖК в р-не Старого Аэропорта от застройщика
Цены и наличие актуальны от 26 сентября 2025

Характеристика комплекса
Класс ЖК
эконом
Умный дом
нет
Высота потолков
3 м
Технология строительства
кирпичная
Этажность
3
Паркинг
надземный
Варианты отделки
черновая
Лифт
нет
Отопление
автономное
Динамика цен за м² от застройщика
Отзывы
0 отзывов о ЖК в р-не Старого Аэропорта
0.0
Написать отзыв
Загрузка...
Описание
Жилой комплекс, расположился в тихом и уютном районе по улице Бисена Жумагалиева, район Старый Аэропорт, представляет собой современный трехэтажный дом с четырьмя подъездами. Здание выполнено в европейском стиле с кирпичной облицовкой патинум, которая прекрасно сочетается с графитового цвета металлической черепицей на крыше. Комплекс отличается классическим архитектурным дизайном с большими окнами, обеспечивающими максимальное естественное освещение и панорамные виды.

В подъездах установлены остекленные двери с домофонной системой, а стены и полы мест общего пользования оформлены декоративной штукатуркой и керамогранитом. Входные группы оснащены пандусами, что делает их доступными для людей с ограниченными физическими возможностями. Дом подключен к центральным инженерным коммуникациям, а также оборудован системой пожарной сигнализации и современными техническими системами.

Придомовая территория выполнена на большом пространстве и полностью благоустроена. Двор освещен в темное время суток и украшен зелеными насаждениями.

На территории расположены

  • Детская площадка с качелями, горками и песочницами
  • Зоны для отдыха с лавочками и беседками
  • Пешеходные дорожки, выложенные тротуарной плиткой
  • Просторная парковочная зона для автомобилей

Для комфортного проживания и отдыха жильцов предусмотрено всё необходимое.
kn.kz
>
ЖК и новостройки в Казахстане
>
ЖК и новостройки в Уральске
Главная
Поиск
Добавить
0 Избранное
Кабинет