Войти
Поиск недвижимости Добавить объявление Новостройки Застройщики Агентства недвижимости Риэлторы Статьи Новости Ипотечный калькулятор
Продажа Аренда Реклама на kn.kz Правила и тарифы Правовая информация Способы оплаты Импорт объявлений из xml О компании Обратная связь Полная версия сайта

ЖК на Оракбаева, 1а

Уральск
Адрес
ул. Оракбаева, 1в
2024 г.
Цена
Застройщик: от 280 000 ₸  / м²
Статус
Построен
Идут продажи от застройщика
Застройщик
СВС Батыс
Школа №23
ул. Оракбаева, 37
Торговый дом "Аяжан"
мкр-н Северо-Восток-2
Торговый дом "Идея"
ул. Ульяны Громовой, 27/1
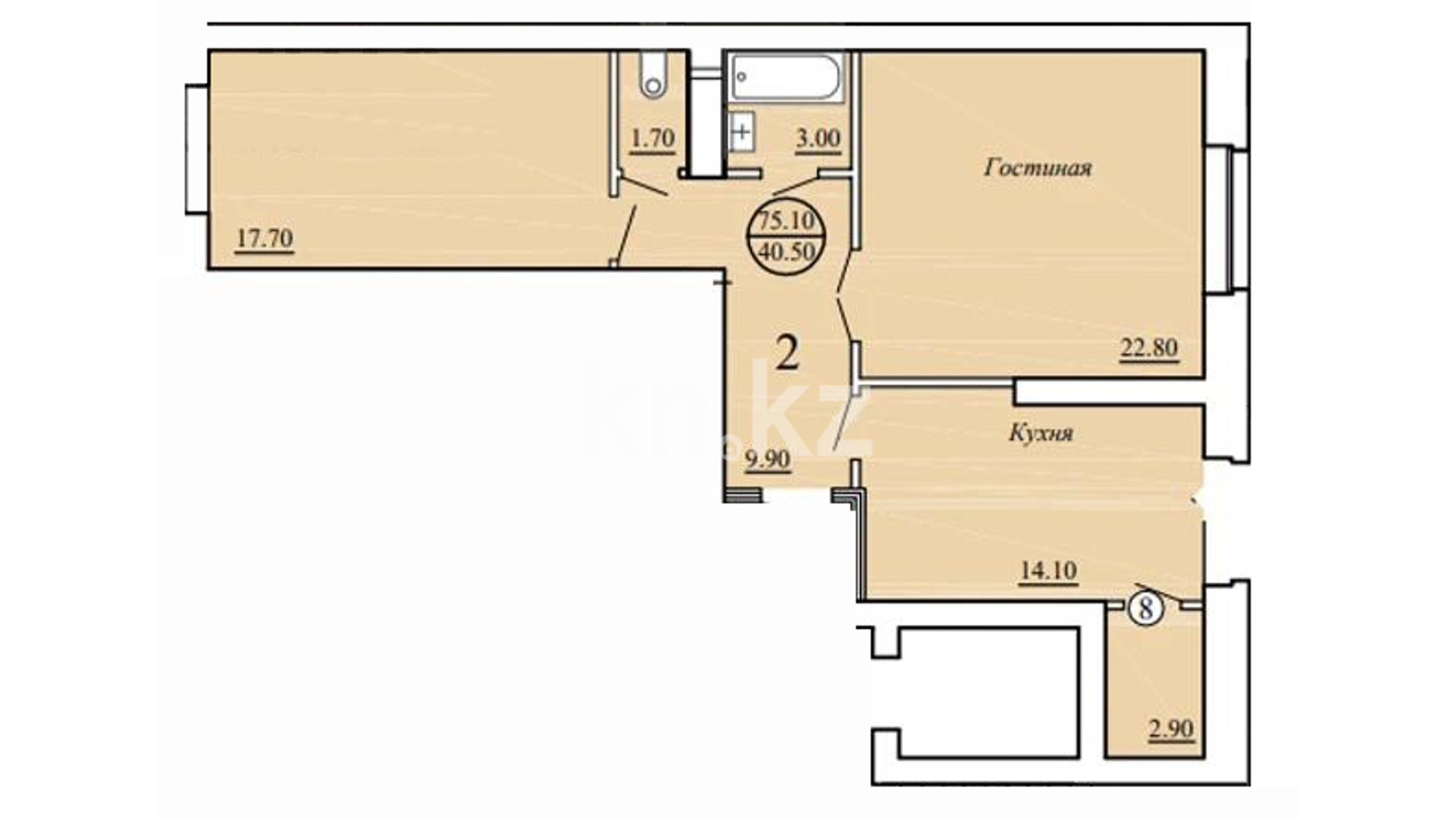
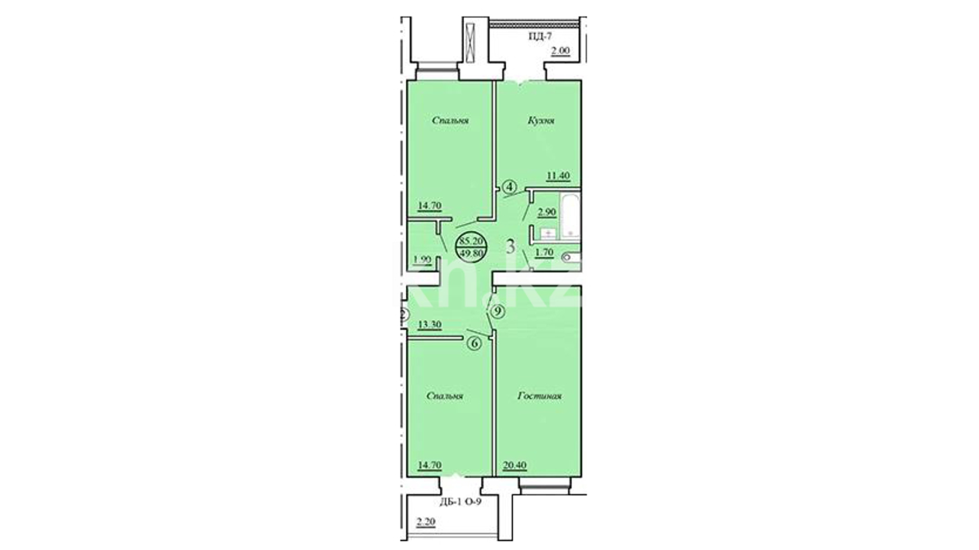
Квартиры и помещения ЖК на Оракбаева, 1а от застройщика
Цены и наличие актуальны от 24 октября 2025

Характеристика комплекса
Класс ЖК
комфорт
Умный дом
нет
Высота потолков
2.8 м
Технология строительства
монолитно-каркасная
Этажность
9
Паркинг
надземный
Варианты отделки
черновая
Лифт
пассажирский
Окна
панорамные
Отопление
автономное
Динамика цен за м² от застройщика
Отзывы
0 отзывов о ЖК на Оракбаева, 1а
0.0
Написать отзыв
Загрузка...
Описание
ЖК на ул. Оракбаева расположен в развитом районе Уральска, на одноименной улице.

Жилой комплекс состоит из одного шестисекционного здания в 9 этажей. Новостройка построена по смешанной технологии (кирпич на монолитном каркасе). Наружные стены утеплены, влаго- и звукоизолированы с применением современных материалов. Фасад отделан облицовочным кирпичом.

В секциях предусмотрены удобные входные группы с учетом потребностей жильцов с ограниченными физическими возможностями, просторные холлы. Полы мест общего пользования отделаны керамогранитной плиткой, стены – декоративной штукатуркой. Лифт в ЖК пассажирского типа. Первый этаж комплекса отведен под размещение коммерческих помещений.
 
Благоустроенная территория:

  • асфальтированные удобные проезды;
  • пешеходные дорожки, покрытые тротуарной плиткой;
  • места для отдыха;
  • детская игровая зона;
  • современное уличное освещение;
  • озеленение территории;
  • наземная автопарковка для временной стоянки машин.
  
Для безопасности жильцов установлены камеры круглосуточного видеонаблюдения.
kn.kz
>
ЖК и новостройки в Казахстане
>
ЖК и новостройки в Уральске
Главная
Поиск
Добавить
0 Избранное
Кабинет