Войти
Поиск недвижимости Добавить объявление Новостройки Застройщики Агентства недвижимости Риэлторы Статьи Новости Ипотечный калькулятор
Продажа Аренда Реклама на kn.kz Правила и тарифы Правовая информация Способы оплаты Импорт объявлений из xml О компании Обратная связь Полная версия сайта

ЖК ARNAU

Караганда, Город
Адрес
ул. Ермекова, 114/8
2025 г.
Цена
Застройщик: от 340 000 ₸  / м²
Другие продавцы: от 359 154 ₸  / м²
Статус
Построен
Идут продажи от застройщика
Застройщик
CMK Group
Продажа от застройщика
Актуально на 9 апреля 2026

Условия продажи
Ипотека
Характеристика комплекса
Класс ЖК: комфорт
Умный дом: нет
Высота потолков: 3 м
Технология строительства: кирпичная
Этажность: 5
Паркинг: надземный
Варианты отделки: предчистовая
Отопление: центральное
Динамика цен за м² от застройщика
Отзывы
0 отзывов о ЖК ARNAU
0.0
Написать отзыв
Загрузка...
Описание
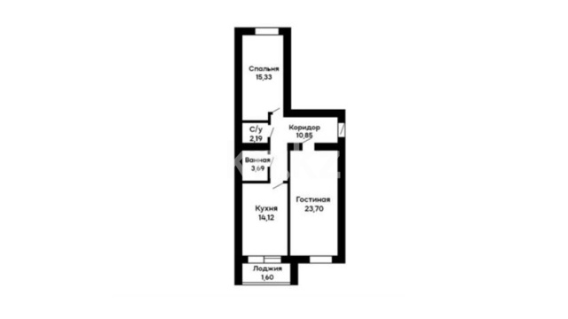
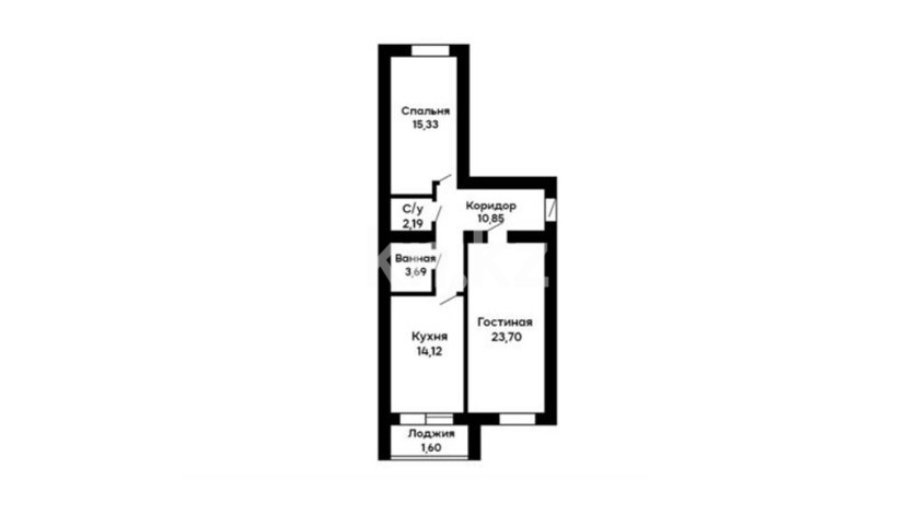
Жилой комплекс ARNAU в Караганде — это кирпичный дом комфорт-класса, расположенный по адресу Ермекова, 114/8, в районе с развитой инфраструктурой и удобной транспортной доступностью. Проект реализуется застройщиком СМК Group и представляет собой пятиэтажное здание с продуманной архитектурой и современным дизайном. Комплекс рассчитан на 50 квартир с различными планировками — от однокомнатных до просторных трёхкомнатных. Все квартиры сдаются с предчистовой отделкой, что позволяет будущим владельцам реализовать собственный дизайн, а потолки высотой 3 метра создают ощущение простора и уюта.

Здание строится с использованием качественных материалов, обеспечивающих хорошую тепло- и звукоизоляцию. Отопление централизованное, что гарантирует стабильное теплоснабжение в зимний период. Особое внимание уделено вопросам безопасности: установлены системы видеонаблюдения, домофоны, предусмотрена охрана и контролируемый доступ в подъезды.

Территория жилого комплекса будет благоустроена по современным стандартам — двор закрыт от машин, что обеспечивает безопасность для детей и комфорт для жителей. На территории размещаются детская площадка, зоны отдыха и наземный паркинг. Вблизи находятся школы, детские сады, магазины, аптеки и другие социально важные объекты, а также удобные выезды на основные городские улицы.

ЖК ARNAU — это сочетание качественного строительства, функциональных планировок и спокойной городской среды, что делает его привлекательным вариантом как для семей, так и для инвесторов, ищущих надёжный и перспективный объект недвижимости. 



Квартиры от других продавцов
kn.kz
>
ЖК и новостройки в Казахстане
>
ЖК и новостройки в Караганде
Главная
Поиск
Добавить
0 Избранное
0 Кабинет