Войти
Поиск недвижимости Добавить объявление Новостройки Застройщики Агентства недвижимости Риэлторы Статьи Новости Ипотечный калькулятор
Продажа Аренда Реклама на kn.kz Правила и тарифы Правовая информация Способы оплаты Импорт объявлений из xml О компании Обратная связь Полная версия сайта

ЖК Janym

Алматы, Талгарский р-н
Цена
Застройщик: от 420 000 ₸  / м²
Статус
Строится
Идут продажи от застройщика
Застройщик
ГлавСтрой2020
Примечание
Целью публикации информации о ЖК является определение спроса на данный продукт. Однако, договоры о долевом участии в жилищном строительстве будут заключены только после того, как будет достигнуто соглашение о предоставлении гарантии от Фонда гарантирования или получено разрешение на привлечение денежных средств от местных исполнительных органов.
Супермаркет "Magnum"
ул. Райымбек батыра, 167
Квартиры и помещения ЖК Janym от застройщика
Цены и наличие актуальны от 7 октября 2025

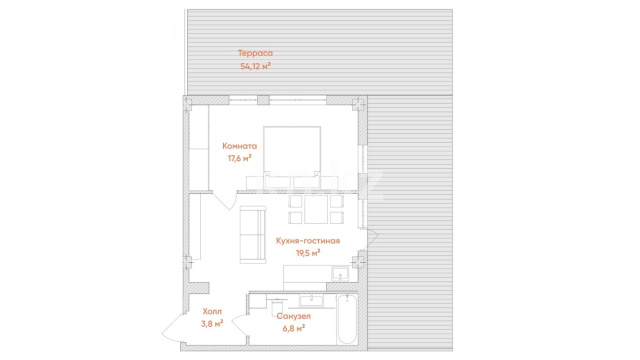
Характеристика комплекса
Класс ЖК
комфорт
Умный дом
нет
Высота потолков
3 м
Технология строительства
монолитно-каркасная
Этажность
3
Паркинг
надземный
Варианты отделки
черновая
Лифт
нет
Отопление
автономное
Отзывы
0 отзывов о ЖК Janym
0.0
Написать отзыв
Загрузка...
Описание
Добро пожаловать в ЖК "Janym" – современный коттеджный поселок от застройщика Glavstroy, расположенный в экологически чистом районе Туздыбастау, всего в 10 минутах от центра Алматы по Алатауской трассе. Это место, где утренний туман над горами и свежий воздух создают идеальные условия для семейной жизни, а близость к городской инфраструктуре обеспечивает комфорт и удобство.
kn.kz
>
ЖК и новостройки в Казахстане
>
ЖК и новостройки в Алматы
Главная
Поиск
Добавить
0 Избранное
Кабинет