Продажа 1-комнатной квартиры, 32 м² в Темиртау
Продажа 1-комнатной квартиры, 32 м² в Темиртау - фото 2
Продажа 1-комнатной квартиры, 32 м² в Темиртау - фото 3
Продажа 1-комнатной квартиры, 32 м² в Темиртау - фото 4
Продажа 1-комнатной квартиры, 32 м² в Темиртау - фото 5
4 500 000 ₸
4 500 000 ₸
140 625 ₸ за м²
ул. Блюхера, Темиртау
1-комн. квартира
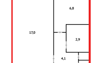
32 м² площадь
6 м² кухня
4 из 5 этаж
О квартире
Состояние
Косметический ремонт
Санузел
Совместный
Балкон
Есть
Расположение
Неугловая
В залоге
Нет
О доме
Тип дома
Кирпичный
Этажность
5
Лифт
Нет
Отопление
Центральное
Описание
Продам 1 комнатную квартиру на Блюхера (Восток) в Кирпичном доме 1966 года на 4 этаже в 5 этажном доме не угловая. Балкон в пластике.
В квартире Средний ремонт : пластиковые окна, , санузел в кафеле пол линолеум, ровные стены.
В подъезде чисто, спокойные и дружные соседи, рядом расположено Поликлиника №1, Детский дом г. Темиртау, ТД Уют, Общеобразовательная школа №11, Центральная больница г. Темиртау, Парк отдыха "Восток", Торговый комплекс Восток, Темиртауский многопрофильный колледж "Мирас"
Документы готовы к сделки.
Рассмотрим наличный расчет и ипотеку.
Помощь в оформлений Ипотеки.
Юридическое сопровождение.

Колжетимди багамен керемет патерлер тауып беремин! Казир уиинизди табыныз.
Бастапкы жарнасыз жане киристи растаусыз ипотекалык комек.Тегин зангерлик кенес.Патер сатып алу команде 0 % комиссия.
Биздин патерлер кукыкты таза.
Мен сиздин параметирлеринизге сайкес муликти тегин тандап беремин.

Томендги номерге хабарласыныз бллады немесе WhatsApp-ка жазыныз.
04.12.2025 id: 3591050
Автор объявления
Жулдыз Абуева
Проверенный риэлтор
Пожаловаться на объявление
Позвонить
Заказать звонок
Похожие объявления
9 фото
4 200 000 ₸
1-комн.
3/5 эт.
31 м²
7 фото
4 800 000 ₸
1-комн.
5/5 эт.
30 м²
6 фото
4 700 000 ₸
1-комн.
5/5 эт.
31 м²
7 фото
4 500 000 ₸
1-комн.
2/5 эт.
30 м²
7 фото
4 800 000 ₸
1-комн.
1/5 эт.
30 м²
10 фото
4 300 000 ₸
1-комн.
5/5 эт.
24 м²
3 фото
4 500 000 ₸
1-комн.
4/5 эт.
32 м²
2 фото
4 600 000 ₸
1-комн.
2/4 эт.
33 м²
Статьи
Ипотека в 2026 году: какие программы действительно выгодны? | kn.kz

Ипотека в 2026 году: какие программы действительно выгодны?

7 причин купить квартиру-студию: почему этот формат остаётся востребованным | kn.kz

7 причин купить квартиру-студию: почему этот формат остаётся востребованным

Как подготовить квартиру к продаже, чтобы она ушла дороже? | kn.kz

Как подготовить квартиру к продаже, чтобы она ушла дороже?

Аннуитетный и дифференцированный платёж: в чём разница и как платить по ипотеке выгоднее | kn.kz

Аннуитетный и дифференцированный платёж: в чём разница и как платить по ипотеке выгоднее

Скрытые расходы при покупке жилья в ипотеку | kn.kz

Скрытые расходы при покупке жилья в ипотеку

kn.kz
>
Продажа квартир в Казахстане
>
Продажа квартир в Темиртау